Wojewódzka 10
ul. Wojewódzka 10, Katowice
Jeśli chcesz dowiedzieć się więcej na temat dostępnej powierzchni biurowej w budynku, napisz:
Wojewódzka 10 - informacje ogólne
Lokalizacja
Budynek położony będzie przy ulicy Wojewódzkiej 10 w centralnej dzielnicy Katowic. Lokalizacja umożliwia sprawny dojazd do innych części miasta, zarówno komunikacją publiczną jak i własnym środkiem transportu. Obiekt oddalony jest od głównego dworca kolejowego w mieście (PKP Katowice Główne) o około 5 minut jazdy samochodem.
Opis budynku
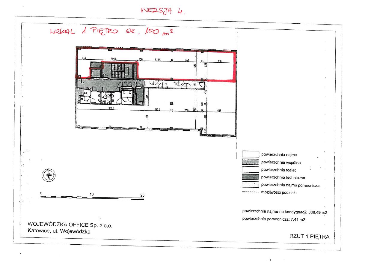
Wojewódzka 10 to 5-kondygnacyjny budynek przeznaczenia mieszanego, oferujący dostęp do około 30 naziemnych miejsc parkingowych. Wnętrze wyposażone będzie we wszelkie rozwiązania techniczne i udogodnienia przewidziane dla tej klasy budynków.
Standard wykończenia
- Podnoszone podłogi
- Podwieszane sufity
- Tryskacze
- Czujniki dymu
- Kable światłowodowe
- Uchylne okna
- BMS
Wojewódzka 10 - informacje szczegółowe
Informacje o budynku
| Status budynku | Istniejący |
| Klasa budynku | A |
| Rok zakończenia budowy | 2017 |
| Powierzchnia całkowita budynku | 2 800 m2 |
| Powierzchnia biurowa brutto budynku | 2 269 m2 |
| Powierzchnia typowego piętra | 561 m2 |
| Współczynnik powierzchni wspólnych | 14% |
| Liczba kondygnacji naziemnych | 5 |
| Liczba miejsc parkingowych naziemnych | 26 |
| Współczynnik miejsc parkingowych | 1/100 |
Wyjściowe warunki najmu
| Dostępna powierzchnia | Po zalogowaniu |
| Czynsz wywoławczy | Po zalogowaniu |
| Koszty eksploatacyjne | Po zalogowaniu |
| Czynsz za parking naziemny | Po zalogowaniu |
Niniejsze warunki mają charakter informacyjny oraz nie stanowią oferty zawarcia jakiejkolwiek umowy w rozumieniu przepisów ustawy z dnia 23 kwietnia 1964 roku Kodeks Cywilny (Dz.U. z 1964 roku, nr 16, poz. 93 z późniejszymi zmianami).
- Biura do wynajęcia Warszawa |
- Biura do wynajęcia Warszawa, Żoliborz |
- Biura do wynajęcia Warszawa, Włochy |
- Biura do wynajęcia Warszawa, Ochota |
- Biura do wynajęcia Warszawa, Śródmieście |
- Biura do wynajęcia Warszawa, Wola |
- Biura do wynajęcia Warszawa, Mokotów |
- Biura do wynajęcia Warszawa, Ursynów |
- Biura do wynajęcia Wilanów, Wilanów |
- Biura do wynajęcia Warszawa, Praga Południe |
- Biura do wynajęcia Warszawa, Praga Północ |
- Biura do wynajęcia Kraków |
- Biura do wynajęcia Poznań |
- Biura do wynajęcia Łódź |
- Biura do wynajęcia Katowice |
- Biura do wynajęcia Wrocław |
- Biura do wynajęcia Gdańsk |
- Biura do wynajęcia Gdynia |
- Biura do wynajęcia Sopot |
- Biura do wynajęcia Szczecin
- Biura do wynajęcia Lublin