Ethos
Plac Trzech Krzyży 10/14, Śródmieście, Warszawa
Jeśli chcesz dowiedzieć się więcej na temat dostępnej powierzchni biurowej w budynku, napisz:
Ethos - informacje ogólne
Lokalizacja
Ethos jest położony pomiędzy Placem Trzech Krzyży, a Alejami Ujazdowskimi w warszawskiej dzielnicy Śródmieście. Obiekt oddalony jest od głównego dworca kolejowego w mieście (PKP Warszawa Centralna) o ok. 10 minut jazdy samochodem. Międzynarodowy Port Lotniczy im. Fryderyka Chopina zlokalizowany jest w odległości 30 minut jazdy od budynku.
Opis budynku
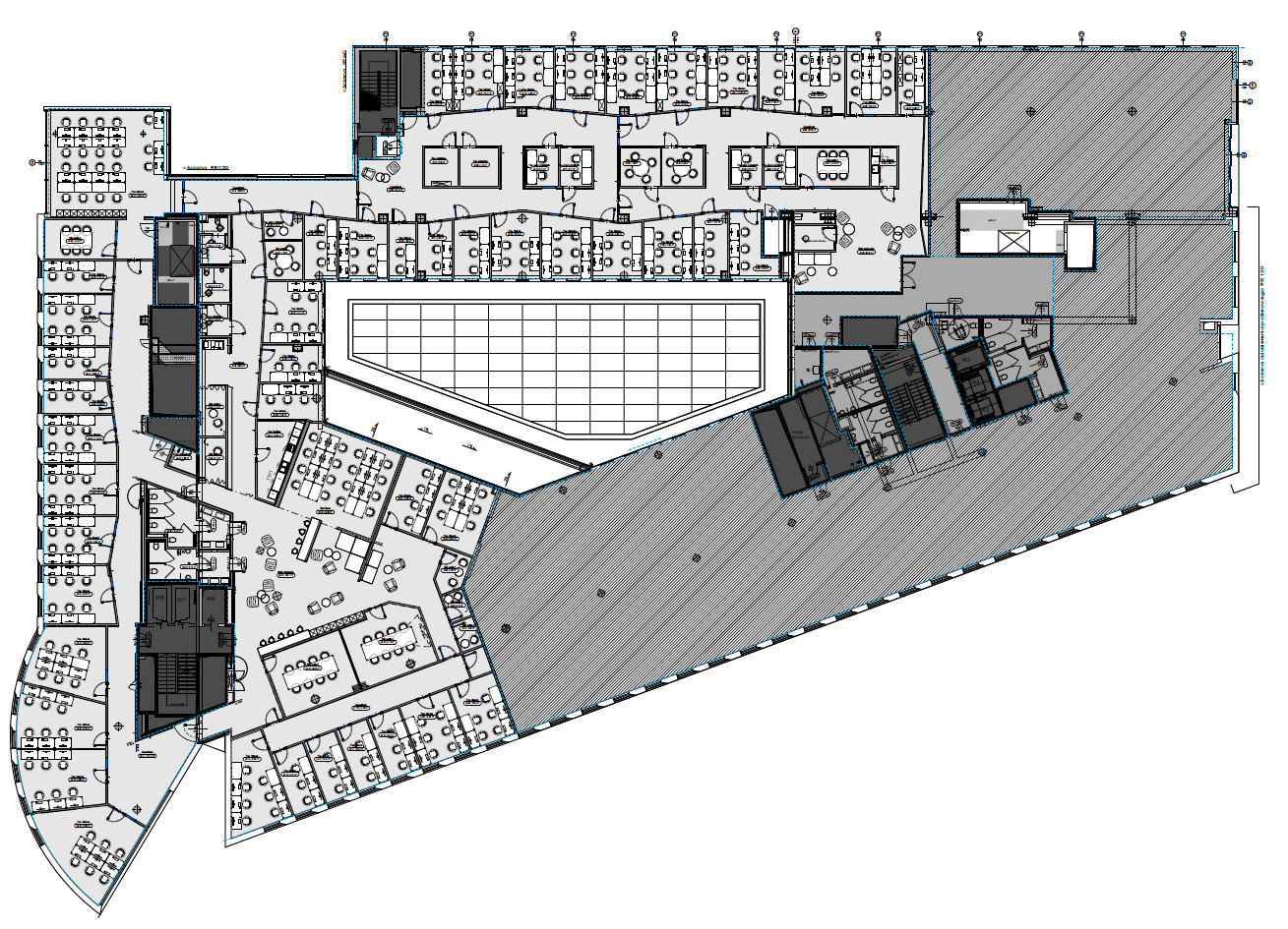
Ethos to 7-kondygnacyjny budynek biurowy, oferujący około 12 000 m2 powierzchni do wynajęcia. Obiekt zapewnia dostęp do 20 naziemnych oraz 108 podziemnych miejsc parkingowych. Powierzchnia typowego piętra wynosi około 3 000 m2. Budynek posiada certyfikat BREEAM na poziomie Excellent.
Standard wykończenia
- Klimatyzacja
- Podnoszone podłogi
- Podwieszane sufity
- Tryskacze
- Czujniki dymu
- Kable światłowodowe
- Uchylne okna
- BMS
Ethos - informacje szczegółowe
Informacje o budynku
| Status budynku | Istniejący |
| Klasa budynku | A+ |
| Rok zakończenia budowy | 1998 |
| Rok renowacji | 2017 |
| Zielony certyfikat | BREEAM |
| Powierzchnia całkowita budynku | 15 281 m2 |
| Powierzchnia biurowa brutto budynku | 12 095 m2 |
| Powierzchnia biurowa netto budynku | 12 000 m2 |
| Powierzchnia typowego piętra | 3 000 m2 |
| Współczynnik powierzchni wspólnych | 7% |
| Liczba kondygnacji naziemnych | 6 |
| Liczba kondygnacji podziemnych | 1 |
| Liczba miejsc parkingowych naziemnych | 20 |
| Liczba miejsc parkingowych podziemnych | 108 |
| Współczynnik miejsc parkingowych | 1/250 |
Wyjściowe warunki najmu
| Dostępna powierzchnia | Po zalogowaniu |
| Minimalny moduł biurowy | 392 m2 |
| Czynsz wywoławczy | Po zalogowaniu |
| Koszty eksploatacyjne | Po zalogowaniu |
| Czynsz za parking podziemny | Po zalogowaniu |
| Minimalny okres najmu | 5 lat |
Niniejsze warunki mają charakter informacyjny oraz nie stanowią oferty zawarcia jakiejkolwiek umowy w rozumieniu przepisów ustawy z dnia 23 kwietnia 1964 roku Kodeks Cywilny (Dz.U. z 1964 roku, nr 16, poz. 93 z późniejszymi zmianami).
- Biura do wynajęcia Warszawa |
- Biura do wynajęcia Warszawa, Żoliborz |
- Biura do wynajęcia Warszawa, Włochy |
- Biura do wynajęcia Warszawa, Ochota |
- Biura do wynajęcia Warszawa, Śródmieście |
- Biura do wynajęcia Warszawa, Wola |
- Biura do wynajęcia Warszawa, Mokotów |
- Biura do wynajęcia Warszawa, Ursynów |
- Biura do wynajęcia Wilanów, Wilanów |
- Biura do wynajęcia Warszawa, Praga Południe |
- Biura do wynajęcia Warszawa, Praga Północ |
- Biura do wynajęcia Kraków |
- Biura do wynajęcia Poznań |
- Biura do wynajęcia Łódź |
- Biura do wynajęcia Katowice |
- Biura do wynajęcia Wrocław |
- Biura do wynajęcia Gdańsk |
- Biura do wynajęcia Gdynia |
- Biura do wynajęcia Sopot |
- Biura do wynajęcia Szczecin
- Biura do wynajęcia Lublin